400-666-1418
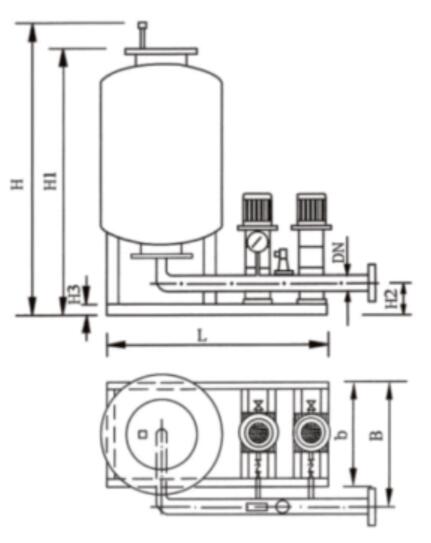
DLDY型自动稳压补水装置是为供热、采暖、空调等系统作自动补水,维护系统压力而设计研制的。它由隔膜式压力罐、水泵、控制箱、底架、压力感应装置、管道、阀门等组合而成,可广泛应用于高层建筑、小区供水、工矿企业的上述系统中。
气室按工艺设计充入预压所需的氮气,装置连接系统,安装完毕,打开本装置与系统之间的阀门。当系统水温的变化引起水的容积膨胀或者收缩时,由隔膜罐自行予以吸入或吐出,使系统压力稳定在予先设定的压力上下限的区域里。系统中的空气通过隔膜罐顶部的排气阀自动排出。如果系统由于漏水或其它原因引起压力下降至予设压力的下限时,由控制系统启动稳压泵,使之向系统供水,直至压力达到所设定的压力上限值时止。若系统压力超过设定的压力值时,电动泄压阀自动泄压,当系统压力超过高压力值时,阀自行开启降压,如此反复,以维持系统的压力平衡。
1、密封性能好,一次充气,可常年使用
2、安装场地不受高度限制
3、配置机动灵活,组合安装快速,装置简便紧凑,占地面积小
4、由于是水气分离,在全封闭状态下保证了水质非污染
5、能减少大部分水锤和管道噪音现象
6、占地面积少,投资省,安装快,操作管理和维修简便。。
7、全自动控制、运行可靠。
适用范围
1、在供热采暖空调系统中取代膨胀水箱并具自动补水作用
2、在多层或高层民用和公共建筑的生活供水,可代替高位水箱或水塔
单罐双泵


双罐双泵

